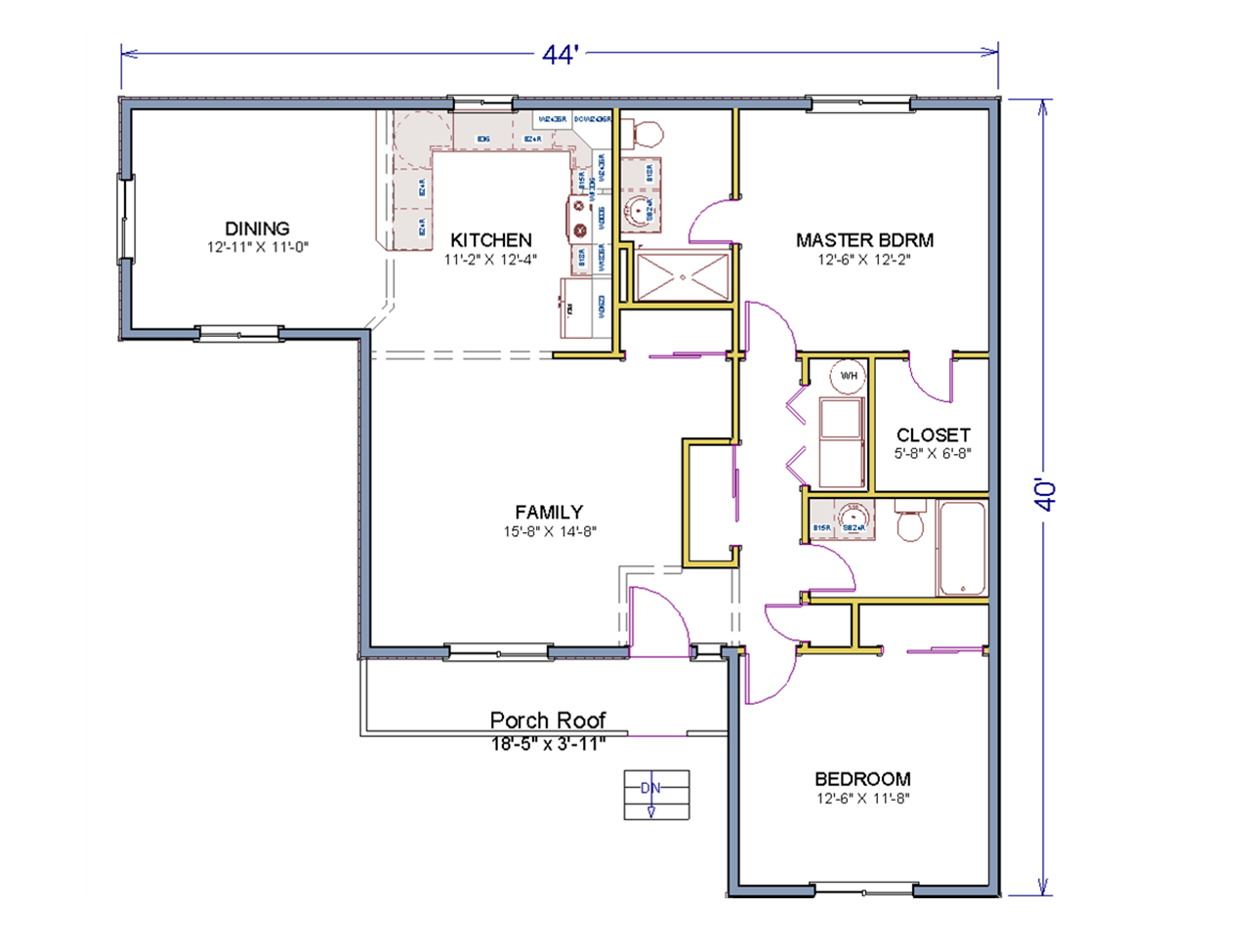
Clear Lake 1200

Bedrooms: 2
Bathrooms: 2
Area: 1,200
Price: $201,900
Story: 1 Story
Garage: Optional

Description

Our new Clear Lake is a 2 bedroom home with 2 nice sized bedrooms and a great space for entertaining.  It comes  with a large front porch roof area. You can option to make the porch larger to give it a more country feel.

House Plans