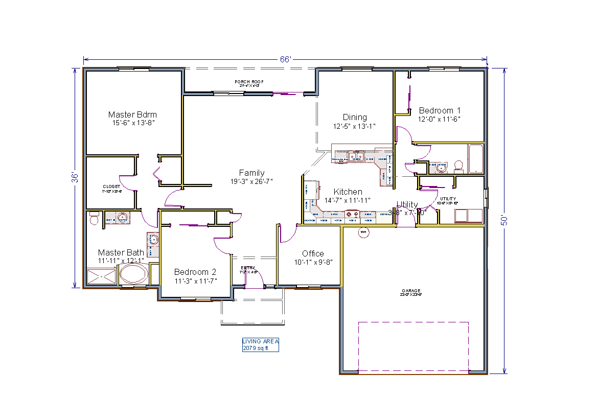
Samish River 2037

Bedrooms: 3
Bathrooms: 2
Area: 2,037
Price: $300,900
Story: 1 Story
Garage: 2 Car

Description

Our Samish River is a smaller variation of the Samish Lake. It has a large master suite, 2 other bedrooms and an office. Enclosed utility room and covered back porch roof area. It has very pleasing curb appeal.

House Plans